Нужно ввести не менее 2 символа(ов).
По вашему запросу ничего не найденно
info@amplatz.ru
+7 (812) 648-00-73
Заказать звонок
+7 (812) 648-00-73
Заказать звонок
О компании
Аренда
Офисы
Коворкинги
Склады
Продажа
Офисы
Наши проекты
Блог
Контакты
Агентство коммерческой недвижимости
Предложения
Бизнес-центры
Бизнес-центр Jensen House на Макарова, 32, 9 кв.м., набережная Макарова, 32
Бизнес-центры
Коворкинги
Склады
Бизнес-центр Jensen House на Макарова, 32, 9 кв.м., набережная Макарова, 32
Избранное (0)
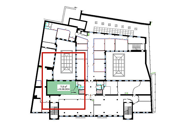
Помещение 75.8 м
2
Jensen House на Макарова, 32
Jensen House на Макарова, 32
Jensen House на Макарова, 32
Тип предложения
Аренда
Этаж
4
Площадь
76 м
2
Ставка аренды
2 100 руб./м
2
/мес
Что оплачивается отдельно
КУ
э/э
уборка
интернет
телефония
Цена за аренду
159 180 руб./мес
Записаться на просмотр
Свяжитесь с нами
Агентство коммерческой недвижимости
info@amplatz.ru
+7 (812) 648-00-73
Написать нам
Ваше имя
*
Телефон
*
E-mail
*
Текст сообщения
Похожие предложения
 
City-Lux 1-593
Санкт-Петербург, Петроградская набережная, 18
Arena Hall
Санкт-Петербург, проспект Добролюбова, 16к2
Акватория
Санкт-Петербург, Выборгская набережная, 61
Международный
Red Cadet на Красного Курсанта
Санкт-Петербург, улица Красного Курсанта, 25